Ügyfélszolgálatunk telefonos elérhetősége: +36309278563
(H-P 8:00-16:00)

Miháczi Kandalló
Kategóriák
Miháczi Kandalló
  • Kategóriák
    • Akciók
    • Épített kandallók
    • Kandallóbetét
    • Kandallókályha
    • Hőtárolós kályhák / kandallók
    • Design kandalló
    • Elektromos kandalló
    • Elektromos design kandalló
    • Biokandalló
    • Gáztüzelésű készülékek
    • Szellőzőrács
    • Kiegészítő termékek
    • Építési anyagok
    • Füstcsövek és idomok
    • Levegő elvezetés
    • Kandalló tartozékok
    • Sport
    • Kerti termékek
  • Cégbemutató
  • Referenciák
Edilkamin H2OCEANO 28 Vízteres kandallóbetét
Edilkamin H2OCEANO 28 Vízteres kandallóbetét
1 299 000 Ft
  1. Vízteres kandallóbetét
  1. Kandallóbetét
  2. Vízteres kandallóbetét

Edilkamin H2OCEANO 28 Vízteres kandallóbetét

Edilkamin H2OCEANO 28 Vízteres kandallóbetét
Edilkamin H2OCEANO 28 Vízteres kandallóbetét
Edilkamin H2OCEANO 28 Vízteres kandallóbetét
Edilkamin H2OCEANO 28 Vízteres kandallóbetét
Edilkamin H2OCEANO 28 Vízteres kandallóbetét
Edilkamin H2OCEANO 28 Vízteres kandallóbetét
Várható szállítási idő: 10-15 munkanap
1 299 000 Ft
Kapcsolódó termékek
Részletek
A kazán karakterével megegyező fatüzelésű vízteres kandalló, körös- körül víz övezi, mely a hőátadó felületet megnövelve ezáltal. A víz a kandalló körül és a kandalló felső részén melegszik fel, majd eljut a hőleadó berendezésekbe (radiátorok, padlófűtés stb.), rendkívül magas, 80%-os vízoldali teljesítménnyel.
 
Tulajdonságok
• öntvény tűzlap, acél tűztéroldalak
• fafogó és elektromos grillezőhöz csatlakozó
• minden modellből 2 változat: nyitott- és zárt rendszerbe köthető CS (beépített biztonsági szeleppel és csőkígyóval)
• alaptartozék: szabályozólábak a szintezéshez
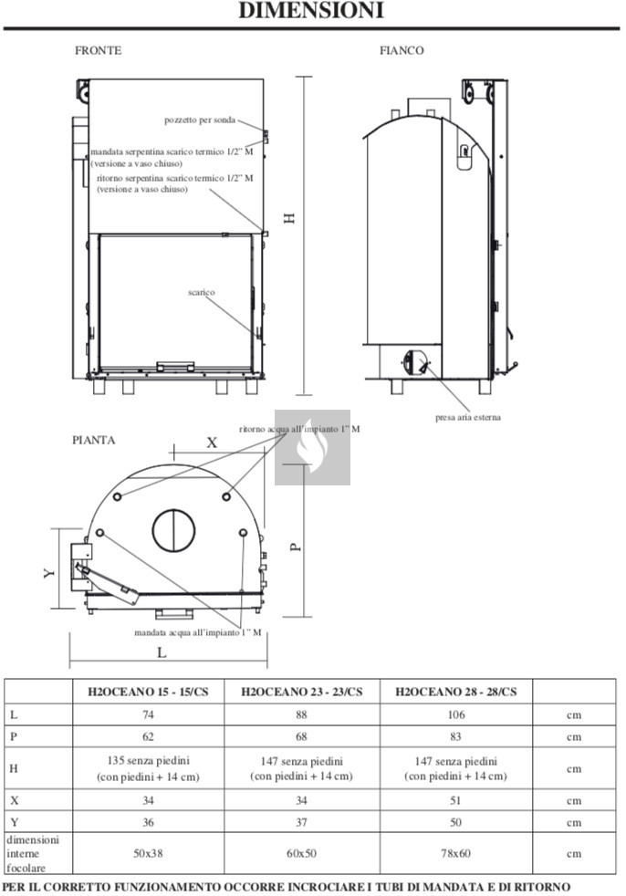
Adatok
Terméktípus:
Vízteres kandallóbetét
Ajtónyitás típusa:
Liftes (feltolható ajtó)
Üvegezés típusa:
Síküveges
Gyártó:
Edilkamin
Magasság:
1 470 mm
Szélesség:
1 060 mm
Mélység:
780 mm
Névleges teljesítmény:
28,1 kW
Füstcső csatlakozás:
250 mm
Külső levegő csatlakozás:
125 mm
Hatásfok:
81,5 %
Átlagos fafogyasztás:
7,5 kg/h
Energiaosztály:
A+
Jótállási idő:
36 hó
Légfűtő teljesítmény:
10,7 kW
Vízoldali teljesítmény:
17,4
Égőtér szélesség:
780
Égőtér magasság:
400
Égőtér mélység:
630
Vízköpeny űrtartalom:
130
Felfűthető légtér:
730
Külső levegőre csatlakoztatható:
igen
Tömeg:
308 kg/db
Vásárlói fiók
  • Belépés
  • Regisztráció
  • Profilom
  • Kosár
  • Kedvenceim
Információk
  • Általános szerződési feltételek
  • Adatkezelési tájékoztató
  • Elállási / felmondási jog
  • Jogi nyilatkozat
  • Szállítás
  • Fizetés
  • Elérhetőségek
Miháczi és Társa Kft.
  • 9797 Nárai, Petőfi Sándor utca 100.
  • +36309278563
  • info@mihaczi.hu
Feliratkozás
Webáruház készítés
cib
  • Akciók
  • Épített kandallók
  • Kandallóbetét
  • Kandallókályha
  • Hőtárolós kályhák / kandallók
  • Design kandalló
  • Elektromos kandalló
  • Elektromos design kandalló
  • Biokandalló
  • Gáztüzelésű készülékek
  • Szellőzőrács
  • Kiegészítő termékek
  • Építési anyagok
  • Füstcsövek és idomok
  • Levegő elvezetés
  • Kandalló tartozékok
  • Sport
  • Kerti termékek
  • Cégbemutató
  • Referenciák
Nyelv váltás
  • hu
  • de
Pénznem váltás
Belépés
Regisztráció
Adatkezelési beállítások
Weboldalunk az alapvető működéshez szükséges cookie-kat használ. Szélesebb körű funkcionalitáshoz (marketing, statisztika, személyre szabás) egyéb cookie-kat engedélyezhet. Részletesebb információkat az Adatkezelési tájékoztatóban talál.
A működéshez szükséges cookie-k döntő fontosságúak a weboldal alapvető funkciói szempontjából, és a weboldal ezek nélkül nem fog megfelelően működni. Ezek a sütik nem tárolnak személyazonosításra alkalmas adatokat.
A marketing cookie-kat a látogatók weboldal-tevékenységének nyomon követésére használjuk. A cél az, hogy releváns hirdetéseket tegyünk közzé az egyéni felhasználók számára (pl. Google Ads, Facebook Ads), valamint aktivitásra buzdítsuk őket, ez pedig még értékesebbé teszi weboldalunkat.
Az adatok névtelen formában való gyűjtésén és jelentésén keresztül a statisztikai cookie-k segítenek a weboldal tulajdonosának abban, hogy megértse, hogyan lépnek interakcióba a látogatók a weboldallal.
A személyre szabáshoz használt cookie-k segítségével olyan információkat tudunk megjegyezni, amelyek megváltoztatják a weboldal magatartását, illetve kinézetét.